שרשרת מסוע עם תוספות לקווי ייצור מלט

שרשרת מסוע עם לוחית חיבור היא סוג של שרשרת מסוע המיועדת לשימוש בתעשיית המלט, המבטיחה דיוק תפעולי ואורך חיים ארוך בתנאי אבק כבד וסביבות קשות.

תיאור

שרשרת מסוע עם לוחית מחוברתתוכננה במיוחד כדי לשפר את היעילות התפעולית והעמידות, ועונה על הדרישות המחמירות של מערכות מסועים בסביבות ייצור מלט.

מאפיינים מבניים

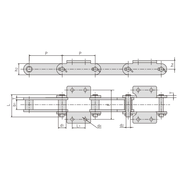
  • מורכבת מפינים, גלילים, לוחות שרשרת פנימיים, לוחות שרשרת חיצוניים ולוחות חיבור בצורת L.
  • הפינים מצוידים בגלילים חיצוניים לתנועה חלקה ולהפחתת חיכוך.
  • לוחות השרשרת הפנימיים מותקנים בין קצות הסיכות הסמוכים, בעוד לוחות השרשרת החיצוניים מחברים את קצות לוחות השרשרת הפנימיים לחיזוק החוזק.
  • לוחות חיבור בצורת L — חלק אנכי המותקן בקצה העליון של לוחית השרשרת הפנימית עם חורי הרכבה אופקיים — משפרים את פיזור העומס ומונעים עיוות או נזק מכוח לא אחיד.

חומר וגודל

  • מיוצר מפלדת פחמן בעלת חוזק גבוה ועמידות בפני שחיקה.
  • ניתן להזמין מידות מותאמות אישית כדי להתאים לדרישות ספציפיות של מערכת המסוע.

סביבת יישום

  • מבנה איטום מעולה וטכנולוגיית ייצור מתקדמת הופכים אותו לאידיאלי לסביבות קשות בתעשיית המלט, כולל אזורים עם אבק כבד.
  • עמיד ביעילות בפני חדירת אבק, תוך שמירה על דיוק ויעילות תפעוליים גבוהים.

עקרון פעולה

השרשרת פועלת באמצעות תנועה וסיבוב רציפים של פינים וגלגלים, המאפשרים הובלת חומרים יעילה. העיצוב המדויק והמבנה החזק שלה מאפשרים לה לשמור על ביצועים יציבים במהירויות גבוהות, לעמוד בלחץ עומס גבוה ובהשפעה, ולהבטיח פעולה רציפה ויעילה של קווי ייצור המלט.

יתרונות עיקריים

  • חוזק ועמידות מעולים ליישומים תעשייתיים תובעניים
  • חלוקת עומס מיטבית למניעת נזק ועיוות
  • עמידות גבוהה בפני שחיקה ואורך חיים ארוך
  • עמידות בפני אבק ומתאימה לסביבות עבודה קיצוניות
  • מבטיח פעולה רציפה ויעילה בייצור מלט
פרמטרים טכניים

שרשרת מסוע עם תוספות טבלה טכנית

שרשרת מסוע עם תוספות טבלה טכנית